
あなたに合わせて変化する
自由空間


柱も間仕切壁もない「 箱 」ケースだから、
どんな「目的」ケースにも作り替えられる。
それが CASE×CASE 。
だからCASE×CASE(ケースバイケース)はレイアウトの自由度が高く、お客様の目的やご要望に合わせて空間をカスタマイズできます。マテリアルは弊社のセレクトから選んでいただくセミオーダーシステムをとることで、コストを抑えながら上質なデザインとクオリティを実現しています。
またCASE×CASEなら、建物が完成したあともライフスタイルや時代の変化に合わせて何度でも空間を作り替えることができます。スケルトン・インフィル方式のシンプルな構造なので、住宅・オフィス・商業店舗など用途に応じた変更も自在。建物にお客様が合わせるのではなく、お客様に建物を合わせていくのです。
Model House公開中モデルハウス
ラインアップから
お好きな箱を選んでいただき、
必要なものだけをカスタマイズ
CASE×CASE(ケースバイケース )はフルオーダーではなく、カスタムによってお客様のご要望をかなえるセミオーダーシステムです。
長年建築業界に携わってきた弊社の経験値から、ご要望が多い平米数・土地形状などの条件に合う、ラインアップをご用意しました。
お客様の好みによってタイプをご選択いただけます。
セミオーダーだけではなく、お客様のご要望を詰め込みながらゼロから建築する「フルオーダー」も承っております。
EXAMPLE.01
住宅へカスタマイズ
ベース

カスタマイズ例
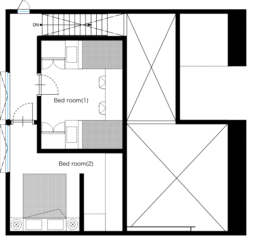
- 1F
- 2F


家族の顔が見えるように、リビングに向いた対面キッチンがある住宅プランです。
2階は開放的なロフトタイプになっており、子供部屋としても、夫婦の寝室としても使える2部屋を設けています。
※写真はイメージです
DESIGN CONCEPT
無駄な主張をしない、
使う人を主役にするデザインで統一
住宅・オフィス・店舗・投資物件など、さまざまな利用シーンに応じて表情を変えることができるので、住宅からオフィスへ使い方を変えたり、インテリアのテイストを変えたり、お客様の変化にも柔軟に対応することができます。

























